For Sale

$1,399,800

2717 S Budlong Ave, Los Angeles, CA 90007

14 Beds
8 Baths
7,318 Sq.Ft.
Est. payment from /mo Get Pre-Approved

Property Description

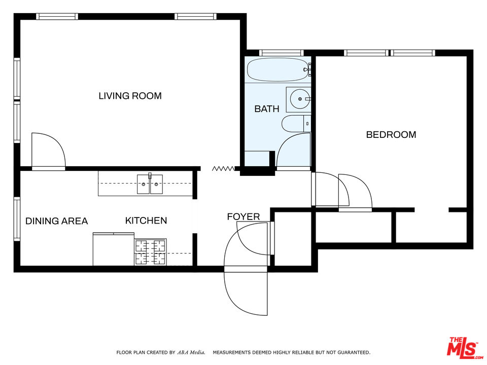
Exceptional 8-Unit Value-Add Opportunity in Prime USC Secure Zone! Located directly across from Richardson Family Park, this rare multifamily offering presents tremendous upside with over 80% rental growth potential. At pro-forma rents, the property achieves a double-digit cap rate exceeding 10%, making it one of the most attractive investment opportunities in the USC area.The property features a highly desirable unit mix of six 2BR/1BA units and two 1BR/1BA units, with an impressive average unit size of 822 SF. Situated on a 7,715 SF lot, the building includes 8 on-site parking spaces and is separately metered for gas and electricity, ensuring low operating expenses. Additionally, the electrical service panel has been recently upgraded, further reducing future capital needs. With its unbeatable location in the USC Secure Zone and proximity to USC campus, BMO Stadium, the new Lucas Museum, Exposition Park, and an abundance of dining and entertainment options, this property is a prime investment poised for immediate and long-term growth.
Exceptional 8-Unit Value-Add Opportunity in Prime USC Secure Zone! Located directly across from Richardson Family Park, this rare multifamily offering presents tremendous upside with over 80% rental growth potential. At pro-forma rents, the property achieves a double-digit cap rate exceeding 10%, making it one of the most attractive investment opportunities in the USC area.The property features a highly desirable unit mix of six 2BR/1BA units and two 1BR/1BA units, with an impressive average unit size of 822 SF. Situated on a 7,715 SF lot, the building includes 8 on-site parking spaces and is separately metered for gas and electricity, ensuring low operating expenses. Additionally, the electrical service panel has been recently upgraded, further reducing future capital needs. With its u...
Read More

Interior

Appliances
Garbage Disposal

Area & Lot

Lot Size
7,775 Sq.Ft.
MLS® ID
26641759
Type
Multi-Family
Year Built
1931

Exterior & Building

Stories
2
Parking
Assigned
Heat Type
Natural Gas
Air Conditioning
None

Finance

Reduced Price
Price Upon Request
Zoning
LAR3
2717 S Budlong Ave

Mortgage Calculator

Estimate your mortgage payment, including the principal and interest, taxes, insurance, HOA, and PMI. Add your location for more accurate estimates.
$0,000 Your Payment 20 15 65 65
$0,000 Your Payment

Work With Vinnie

With over a decade of experience in property management, development, interior design, renovation and sales, Vinnie Park has built a solid reputation as a highly trusted, hardworking broker with extensive market knowledge and unmatched devotion to his clients.